Nest Property - Your property nurtured...
Photo 24-10-2023, 15 20 24.jpg

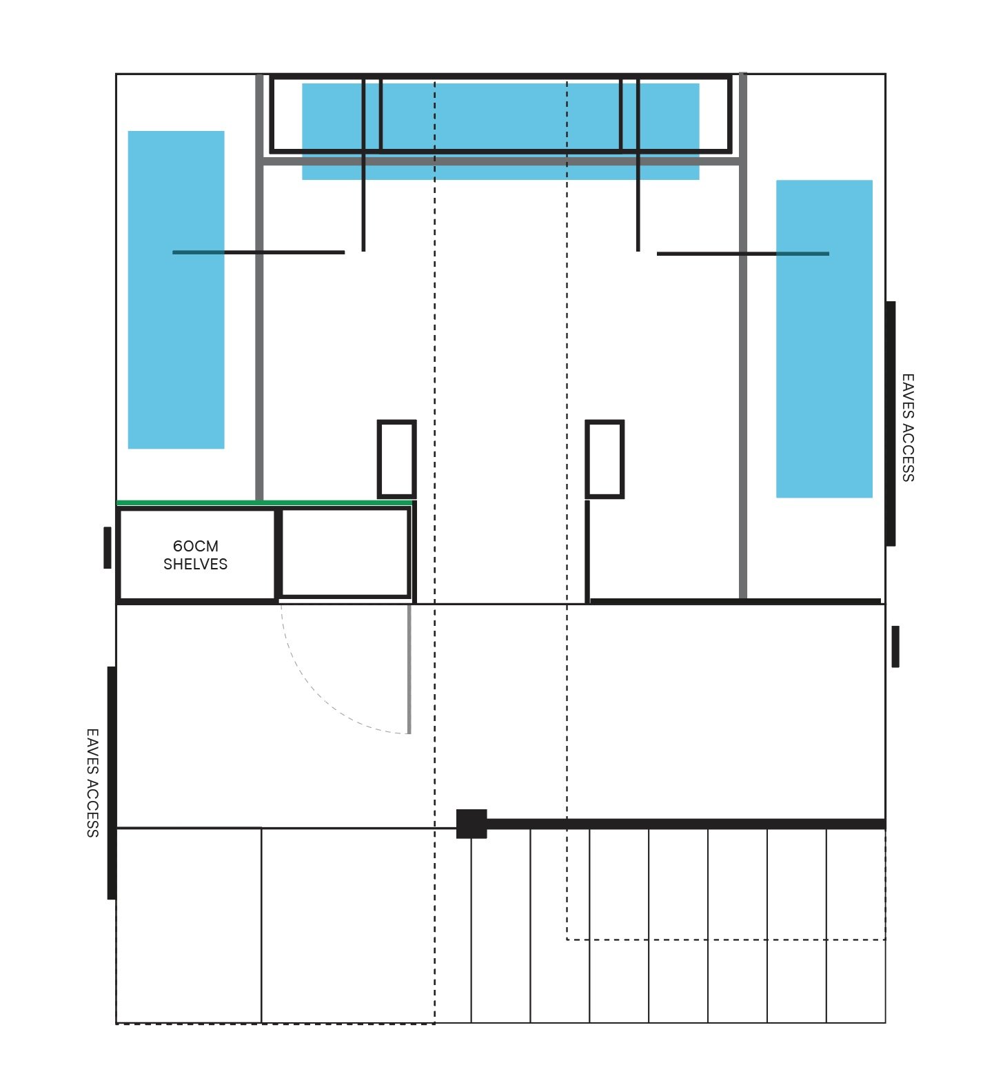
Walkin Wardrobe - WD6

Design and creation of bespoke walk-in wardrobes in a loft conversion.

Custom designed and created MDF wardrobes and soft close doors and drawers fitted into the ceiling shape and wall lines, made to measure floor shoe box storage and shelving.

Everything primed and painted in eggshell grey.

Galvanised pipework and accessories were installed as hanging space for their alternative look and superior strength.

Automatic ceiling LED downlights were installed which illuminate as you walk in.

Screenshot 2023-07-07 at 20.52.52.jpg
Screenshot 2023-07-07 at 20.53.02.jpg
IMG_8163.jpeg
IMG_8165.jpeg
Photo 03-07-2023, 19 07 56.jpg
IMG_8242.jpeg
IMG_8247.jpeg
IMG_8365.jpeg
IMG_8368.jpeg
IMG_8369.jpeg
IMG_8370.jpeg
IMG_8373.jpeg
IMG_8374.jpeg
IMG_8377.jpeg
IMG_8381.jpeg
IMG_8390.jpeg
IMG_8393.jpeg
Photo 06-07-2023, 12 29 51.jpg
Photo 06-07-2023, 16 02 25.jpg
Photo 06-07-2023, 16 08 10.jpg
Photo 06-07-2023, 19 48 03.jpg
Photo 06-07-2023, 19 48 19.jpg
Photo 24-10-2023, 15 20 38.jpg
Photo 24-10-2023, 15 20 42.jpg
Photo 24-10-2023, 15 20 17.jpg
Photo 24-10-2023, 15 20 24.jpg
Photo 24-10-2023, 23 10 55 (1).jpg
Photo 29-11-2023, 18 52 56.jpg